プライムアーバン亀有は、
亀有駅から徒歩5分の物件になります!
家賃は20万円代、2LDKです。
「プライムアーバン亀有」について

「プライムアーバン亀有」の物件概要
| 所在地 | 東京都葛飾区亀有3丁目17番3号 |
|---|---|
| 最寄駅 | JR常磐線/亀有駅 徒歩5分 |
| 築年数 | 2009年2月 |
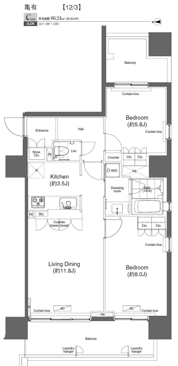
| 間取り | 2LDK |
| 構造 | RC造 |
「プライムアーバン亀有」の室内詳細
間取り

| 水道(公営) / ガス(都市) / 排水(下水) / バス専用共同(専用) / トイレ専用共同(専用) / バス・トイレ別 / コンロ種別(ガス) / コンロ口数(三口) / システムキッチン / 追い焚き / エアコン / 室内洗濯機置き場 / CATV / CSアンテナ / BSアンテナ / オートロック / エレベータ / フローリング / 宅配ボックス / 駐輪場 / internet対応(光ファイバー) / TVドアホン / 温水洗浄便座 / カウンターキッチン / 浴室乾燥機 / 独立洗面台 / クローゼット / シューズボックス / 楽器相談不可 / 事務所不可 / 二人入居可 / ペット不可 / 敷地内ゴミ置き場 |
洋室

洋室は、シンプルで使いやすいデザインが魅力のお部屋です。フローリング仕様でお掃除がしやすく、家具の配置も自由自在。ナチュラルな色合いの内装は、どんなインテリアにもマッチし、落ち着いた空間を演出します。エアコンや収納スペースが完備されていることも多く、快適な生活をサポートします。ワークスペースやベッドルーム、趣味の部屋など、多目的に使えるのも洋室ならではの魅力です。日当たりや風通しにも配慮された設計で、居心地の良さを実感できます。
システムキッチン

システムキッチンは、調理台・コンロ・シンク・収納などが一体化された、使い勝手に優れたキッチン設備です。デザイン性と機能性を兼ね備えており、スペースを有効活用しながら、作業効率のよい動線を確保できます。引き出し式の収納やビルトインコンロ、グリル、食洗機などが備え付けられていることが多く、日々の家事をサポートしてくれます。また、見た目にもすっきりとした印象で、LDK空間に自然に溶け込むデザインも魅力のひとつ。掃除のしやすさや耐久性にも配慮されており、忙しい毎日でも快適に料理が楽しめる環境が整っています。
浴室

浴室乾燥機は、天候や時間帯を気にせず洗濯物を乾かすことができるため、特に梅雨や冬の時期に重宝されるほか、浴室内の湿気を効果的に取り除くことでカビや臭いの発生を防ぎ、清潔な空間を保つのに役立ちます。また、冬場には浴室を事前に暖めておくことで寒さによるヒートショックのリスクを軽減し、安心して入浴できる環境を整えられるだけでなく、浴室を乾燥室として活用することで生活空間を広く使えるというメリットもあり、忙しい現代の生活において非常に実用的で快適な設備です。
独立洗面台

独立洗面台は、洗面・歯磨き・身支度などを浴室やトイレと分けて行えるため、家族が同時に別々の用途で使用できて朝の混雑を緩和できるうえ、湿気や水はねの影響を受けにくく衛生的で、収納スペースも確保しやすく、快適で効率的な生活を実現する設備です。
バストイレ別

バストイレ別とは、浴室とトイレが独立して設置されている間取りのことを指し、衛生面や使い勝手の良さから非常に人気があります。入浴中に他の人がトイレを使用できるため、複数人での暮らしでも快適です。また、湿気やにおいが分かれることで掃除がしやすく、清潔な状態を保ちやすいのも大きなメリットです。ワンランク上の暮らしを求める方や、プライベート空間を重視する方におすすめの設備です。
エントランス

「プライムアーバン亀有」のおすすめポイント
お部屋探しでお困りの方へ
リブリッチ錦糸町駅前店は錦糸町駅から徒歩1分の駅前に店舗を構え、錦糸町駅周辺の賃貸マンション・賃貸アパート、売買物件など不動産全般のご紹介をおこなっております。
錦糸町周辺へお引越しを検討されている単身の方やカップル、新婚さん、ファミリーなど様々なニーズに合わせて常にお客様目線での接客を心がけ、お客様に最適なお部屋をご紹介いたします。
「賃貸・売買で契約の事がわからない」「遠方で来店ができない」「初期費用を抑えたい」等のお悩みはお気軽にご相談ください。

