パークアクシス駒込HILLTOPは、
両国駅から徒歩8分の物件になります!
家賃は27万円代、2LDKです。
「パークアクシス駒込HILLTOP」について

「パークアクシス駒込HILLTOP」の物件概要
| 所在地 | 東京都北区中里3丁目18-4 |
|---|---|
| 最寄駅 | JR山手線/駒込駅 徒歩8分 JR京浜東北・根岸線/田端駅 徒歩12分 |
| 築年数 | 2014年12月 |
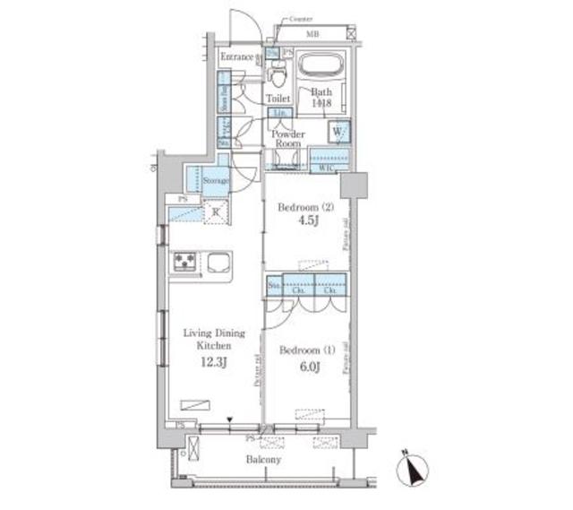
| 間取り | 2LDK |
| 構造 | RC造 |
「パークアクシス駒込HILLTOP」の室内詳細
間取り

| バス専用共同(専用) / バス・トイレ別 / システムキッチン / エアコン / W.INクローゼット / 室内洗濯機置き場 / CATV / CSアンテナ / BSアンテナ / オートロック / エレベータ / バルコニー / フローリング / 宅配ボックス / バイク置き場 / 浴室乾燥機 / ごみ出し24時間OK / 独立洗面台 / 楽器相談可 / 事務所不可 / ペット相談 / 敷地内ゴミ置き場 |
洋室

洋室は、シンプルで使いやすいデザインが魅力のお部屋です。フローリング仕様でお掃除がしやすく、家具の配置も自由自在。ナチュラルな色合いの内装は、どんなインテリアにもマッチし、落ち着いた空間を演出します。エアコンや収納スペースが完備されていることも多く、快適な生活をサポートします。ワークスペースやベッドルーム、趣味の部屋など、多目的に使えるのも洋室ならではの魅力です。日当たりや風通しにも配慮された設計で、居心地の良さを実感できます。
システムキッチン

システムキッチンは、調理台・コンロ・シンク・収納などが一体化された、使い勝手に優れたキッチン設備です。デザイン性と機能性を兼ね備えており、スペースを有効活用しながら、作業効率のよい動線を確保できます。引き出し式の収納やビルトインコンロ、グリル、食洗機などが備え付けられていることが多く、日々の家事をサポートしてくれます。また、見た目にもすっきりとした印象で、LDK空間に自然に溶け込むデザインも魅力のひとつ。掃除のしやすさや耐久性にも配慮されており、忙しい毎日でも快適に料理が楽しめる環境が整っています。
浴室乾燥機

浴室乾燥機は、浴室内で衣類を乾かせる便利な設備です。天候に左右されずに洗濯物を乾かせるため、梅雨や花粉の季節、夜間の洗濯にも重宝します。湿気を効率よく排出するため、カビの発生も抑えられ、浴室の清潔さを保つ効果もあります。また、暖房機能がついていれば冬場の入浴時も快適です。忙しい毎日をサポートする、現代の住まいに欠かせないアイテムです。
独立洗面台

独立洗面台は、洗面スペースが浴室やトイレと分かれているタイプの洗面設備で、使い勝手の良さが魅力です。朝の身支度や帰宅後の手洗いなど、他の水回りを使用中でも気兼ねなく使えるため、家族の多い世帯にもおすすめです。収納力のあるキャビネット付きのタイプが多く、化粧品や洗面用具をすっきりと整理できます。また、大きめの鏡や照明が備わっているため、メイクや髪のセットなどの身だしなみにも便利です。洗面所としての独立性が高いことで生活動線もスムーズになり、快適で清潔感のある暮らしをサポートしてくれます。
バストイレ別

バストイレ別とは、浴室とトイレが独立して設置されている間取りのことを指し、衛生面や使い勝手の良さから非常に人気があります。入浴中に他の人がトイレを使用できるため、複数人での暮らしでも快適です。また、湿気やにおいが分かれることで掃除がしやすく、清潔な状態を保ちやすいのも大きなメリットです。ワンランク上の暮らしを求める方や、プライベート空間を重視する方におすすめの設備です。
共有部

「パークアクシス駒込HILLTOP」のおすすめポイント
お部屋探しでお困りの方へ
リブリッチ錦糸町駅前店は錦糸町駅から徒歩1分の駅前に店舗を構え、錦糸町駅周辺の賃貸マンション・賃貸アパート、売買物件など不動産全般のご紹介をおこなっております。
錦糸町周辺へお引越しを検討されている単身の方やカップル、新婚さん、ファミリーなど様々なニーズに合わせて常にお客様目線での接客を心がけ、お客様に最適なお部屋をご紹介いたします。
「賃貸・売買で契約の事がわからない」「遠方で来店ができない」「初期費用を抑えたい」等のお悩みはお気軽にご相談ください。

