東京都心・浅草駅から徒歩7分。利便性に優れながらも、穏やかな住環境が魅力の「日神デュオステージ浅草Ⅱ」。
ご紹介するのは、2010年築で、ベッドやテレビなど家具は配置できるスペースは十分に確保できます。
収納スペースとしてクローゼットが備わっております。カップルの方や新婚さんに十分の広さで、洋服が多い方にもおすすめです。
アクセス・設備・快適性がバランスよく整った「日神デュオステージ浅草Ⅱ」。都心で安心かつ便利な暮らしを求める方に、ぜひ一度現地でご覧いただきたいおすすめの物件です。
「日神デュオステージ浅草Ⅱ」について

「日神デュオステージ浅草Ⅱ」の物件概要
| 所在地 | 東京都台東区千束1丁目7−3 |
|---|---|
| 最寄駅 | つくばエクスプレス/浅草駅 徒歩7分 東京メトロ日比谷線/入谷駅 徒歩8分 |
| 築年数 | 2010年7月 |
| 間取り | 1DK |
| 構造 | 鉄筋コンクリート造 |
「日神デュオステージ浅草Ⅱ」の室内詳細
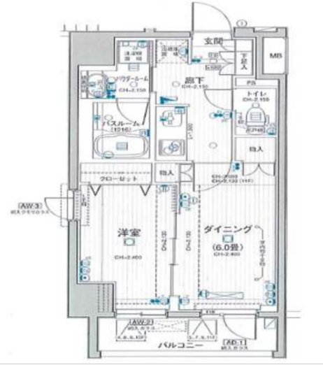
間取り

| 水道(公営) / ガス(都市) / 排水(下水) / バス専用共同(専用) / トイレ専用共同(専用) / バス・トイレ別 / シャワー / コンロ種別(IH) / コンロ口数(二口) / システムキッチン / 給湯 / 追い焚き / エアコン / 室内洗濯機置き場 / オートロック / エレベータ / バルコニー / フローリング / 宅配ボックス / 駐輪場 / バイク置き場 / internet対応(光ファイバー) / TVドアホン / 温水洗浄便座 / 浴室乾燥機 / 独立洗面台 / カード決済(初期費用) / クローゼット / シューズボックス / 照明器具付き / 二人入居可 / ペット相談 / 保証人不要 |
DK

DKは、十分な広さが確保されており、カップルの方やご家族様にオススメです。
システムキッチン

システムキッチンは、調理や片付けを効率的に行えるよう設計された一体型のキッチンで、デザイン性と機能性を兼ね備えているのが大きな特徴です。シンクやコンロ、作業台、収納などが最適な位置に配置されており、スムーズな動線を実現することで家事の負担を軽減します。また、収納スペースが豊富で、引き出しや吊戸棚などにより調理器具や調味料を整理しやすく、キッチンを常にすっきりと保つことができます。
バスルーム

バストイレ別の間取りは、お風呂とトイレが別々の空間に分かれているため、使いやすさとプライバシーが大幅に向上します。トイレを使う人がお風呂の使用を気にせずに済むほか、清掃や換気もそれぞれ独立して行いやすいのがメリットです。特に複数人での生活や来客時にも便利で、衛生面でも安心感が高い点から、多くの方に好まれる設備です。
独立洗面台

独立洗面台は、浴室やトイレと分かれていることで、家族が同時に身支度できて朝の混雑を緩和できるほか、来客にも気兼ねなく使ってもらえる利便性や、湿気が少なく衛生的に保ちやすいという特徴があります。また、収納やインテリアの自由度が高く、好みに合わせた空間づくりができる上、帰宅後すぐに手洗いができるなど生活動線の面でも優れており、機能性と快適性を両立できる点が大きなメリットです。
トイレ

トイレには温水洗浄便座を完備しており、季節を問わず快適に使えるのはもちろん、清潔さを保ちやすい点も嬉しいポイント。毎日使う場所だからこそ、こうした細かな設備の充実が、二人の暮らしに心地よさをプラスしてくれます。
クローゼット

クローゼットは衣類や小物をまとめて収納できるため、部屋をすっきりと保てるだけでなく、探しやすく取り出しやすいことで日々の身支度がスムーズになります。空間を有効活用できる点や、扉を閉めれば中が見えず生活感を隠せる点も魅力で、見た目の美しさと実用性を両立できる収納スペースです。また、ライフスタイルに合わせて棚やハンガーの位置を調整することで、自分だけの使いやすい収納空間を作れるのも大きな利点です。
「日神デュオステージ浅草Ⅱ」のおすすめポイント
お部屋探しでお困りの方へ
リブリッチ錦糸町駅前店は錦糸町駅から徒歩1分の駅前に店舗を構え、錦糸町駅周辺の賃貸マンション・賃貸アパート、売買物件など不動産全般のご紹介をおこなっております。
錦糸町周辺へお引越しを検討されている単身の方やカップル、新婚さん、ファミリーなど様々なニーズに合わせて常にお客様目線での接客を心がけ、お客様に最適なお部屋をご紹介いたします。
「賃貸・売買で契約の事がわからない」「遠方で来店ができない」「初期費用を抑えたい」等のお悩みはお気軽にご相談ください。

